Аренда помещений г. Жабинка, ул. Центральная, 4

Перечень площадей, сдаваемых в аренду
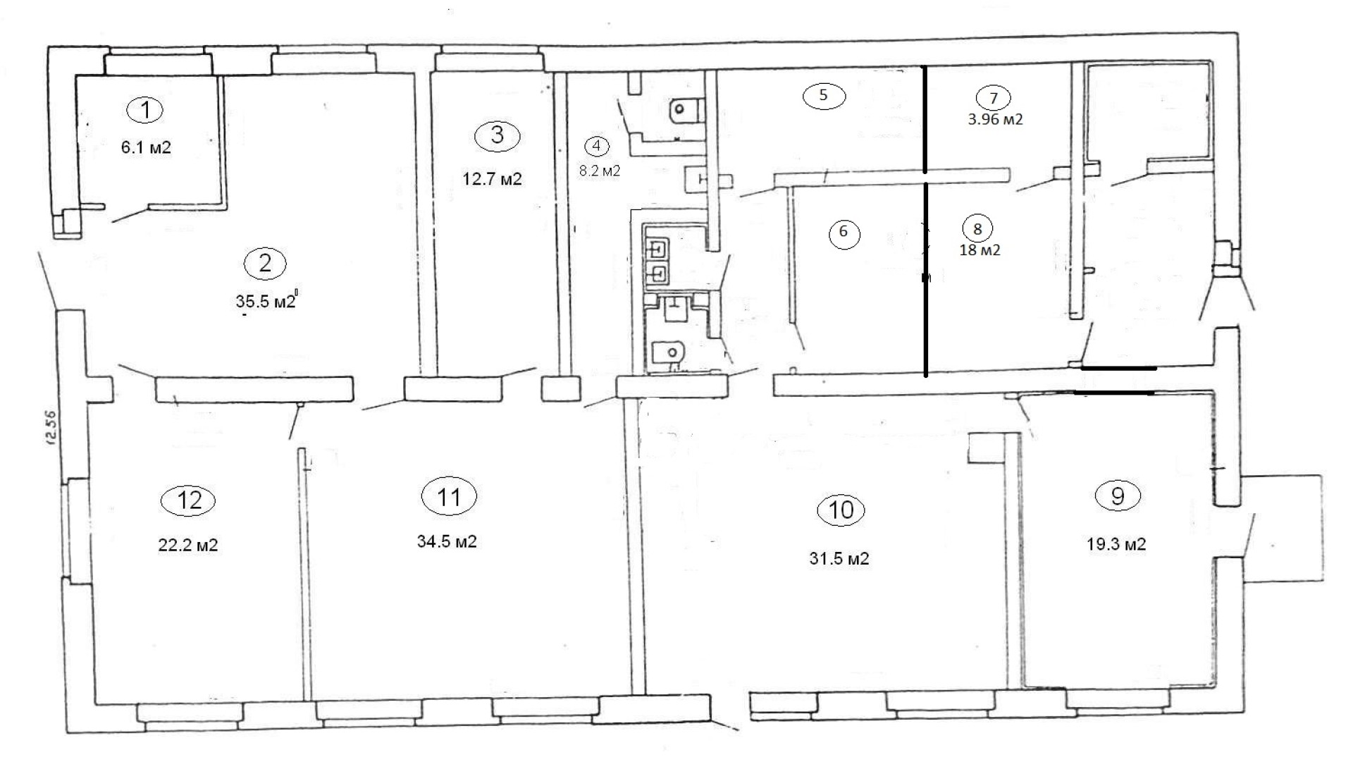
| Помещения | м2 | Номер помещения | Наличие свободных помещений |
| помещение | 6,1 | 1 | Нет |
| помещение | 35.5 | 2 | Нет |
| помещение | 12.7 | 3 | Нет |
| помещение | 12,7 | 4 | Нет |
| помещение | 11,5 | 5 | Нет |
| помещение | 17,5 | 6 | Нет |
| помещение | 3,96 | 7 | Нет |
| помещение | 18 | 8 | Нет |
| помещение | 19,3 | 9 | Нет |
| помещение | 31,5 | 10 | Нет |
| помещение | 34,5 | 11 | Нет |
| помещение | 22,2 | 12 | Нет |
По вопросам аренды, можно связаться по телефону +375 (29) 278-59-20
Похожие услуги
Аренда помещений г. Малорита, УЛ. Ленина, 12
ОАО «Брестоблгарант» сдает коммерческую недвижимость в аренду в г. Малорита. Отдельностоящее двухэтажное капитальное строение с прилегающей территорией.
Аренда помещений г. Пинск, ул. Брестская, 107
ОАО «Брестоблгарант» сдает коммерческую недвижимость в аренду в г. Пинске. Отдельностоящее двухэтажное капитальное строение с прилегающей территорией. Имеются все коммуникации.