Аренда помещений г. Пинск, ул. Брестская, 107


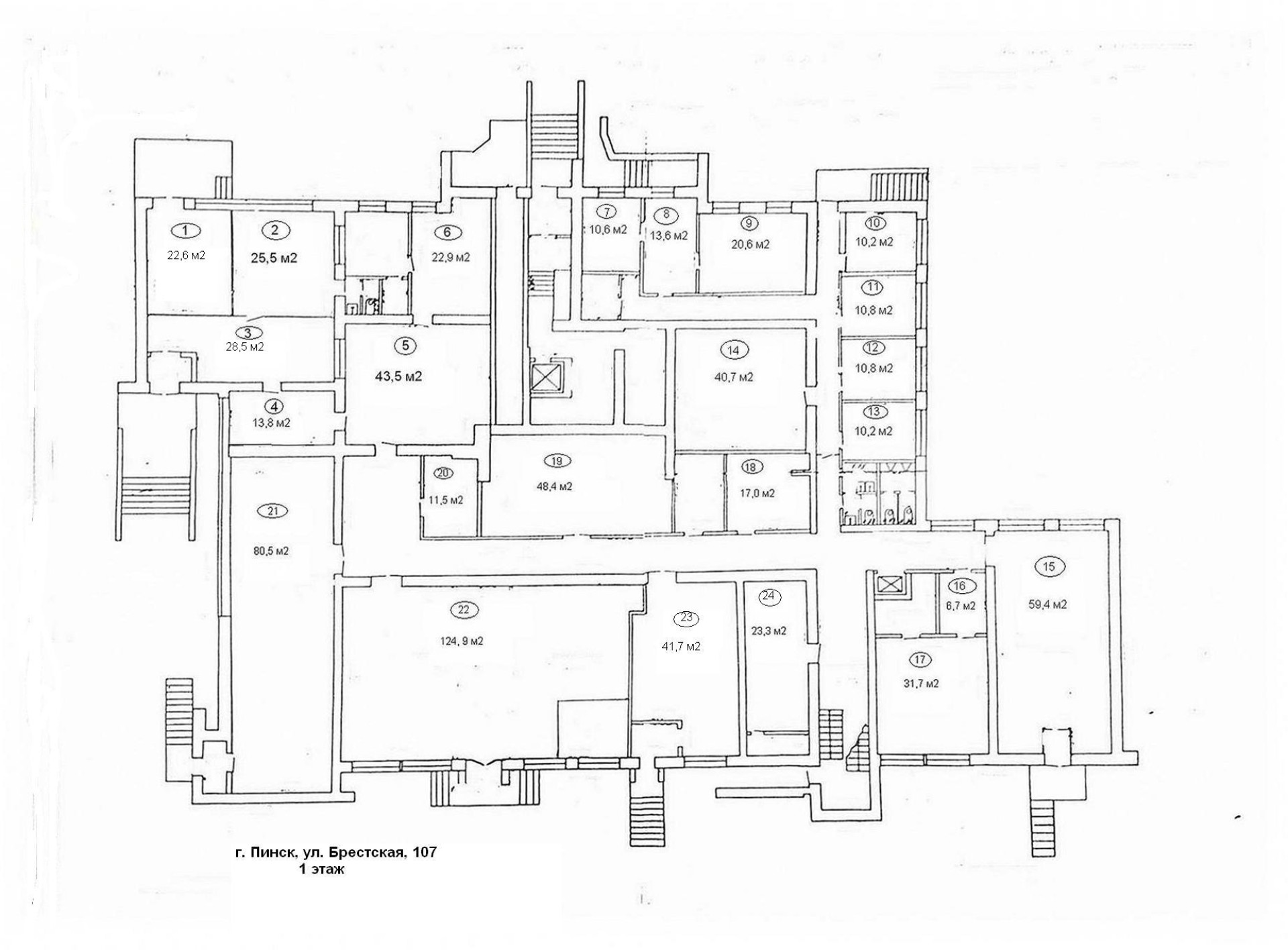
Перечень площадей, сдаваемых в аренду на первом этаже
| Помещения | м2 | Номер помещения | Наличие свободных помещений |
| помещение | 22,6 | 1 | Нет |
| помещение | 25,5 | 2 | Нет |
| помещение | 28,5 | 3 | Да |
| помещение | 13,8 | 4 | Нет |
| помещение | 43,5 | 5 | Нет |
| помещение | 22,9 | 6 | Нет |
| помещение | 10,6 | 7 | Нет |
| помещение | 13,6 | 8 | Нет |
| помещение | 20,6 | 9 | Нет |
| помещение | 10,2 | 10 | Нет |
| помещение | 10,8 | 11 | Нет |
| помещение | 10,8 | 12 | Нет |
| помещение | 10,2 | 13 | Нет |
| помещение | 40,7 | 14 | Нет |
| помещение | 59,4 | 15 | Нет |
| помещение | 6,7 | 16 | Да |
| помещение | 31,7 | 17 | Да |
| помещение | 17 | 18 | Да |
| помещение | 48,4 | 19 | Нет |
| помещение | 11,5 | 20 | Да |
| помещение | 80,5 | 21 | Нет |
| помещение | 124,9 | 22 | Нет |
| помещение | 41,7 | 23 | Нет |
| помещение | 23,3 | 24 | Да |
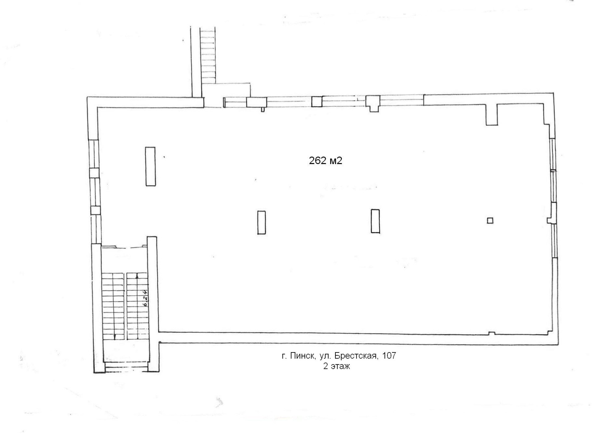
Перечень площадей, сдаваемых в аренду на втором этаже
| Помещения | м2 | Номер помещения | Наличие свободных помещений |
| помещение | 262,2 | 1 | Да |
По вопросам аренды, можно связаться по телефону +375 (29) 278-59-20
Похожие услуги
Аренда помещений г. Малорита, УЛ. Ленина, 12
ОАО «Брестоблгарант» сдает коммерческую недвижимость в аренду в г. Малорита. Отдельностоящее двухэтажное капитальное строение с прилегающей территорией.
Аренда помещений г. Жабинка, ул. Центральная, 4
ОАО «Брестоблгарант» сдает коммерческую недвижимость в аренду в г. Жабинка. Отдельностоящее одноэтажное капитальное строение с прилегающей территорией. Имеются все коммуникации.