Аренда помещений г. Берёза, ул. Энергетиков, 23

Перечень площадей, сдаваемых в аренду
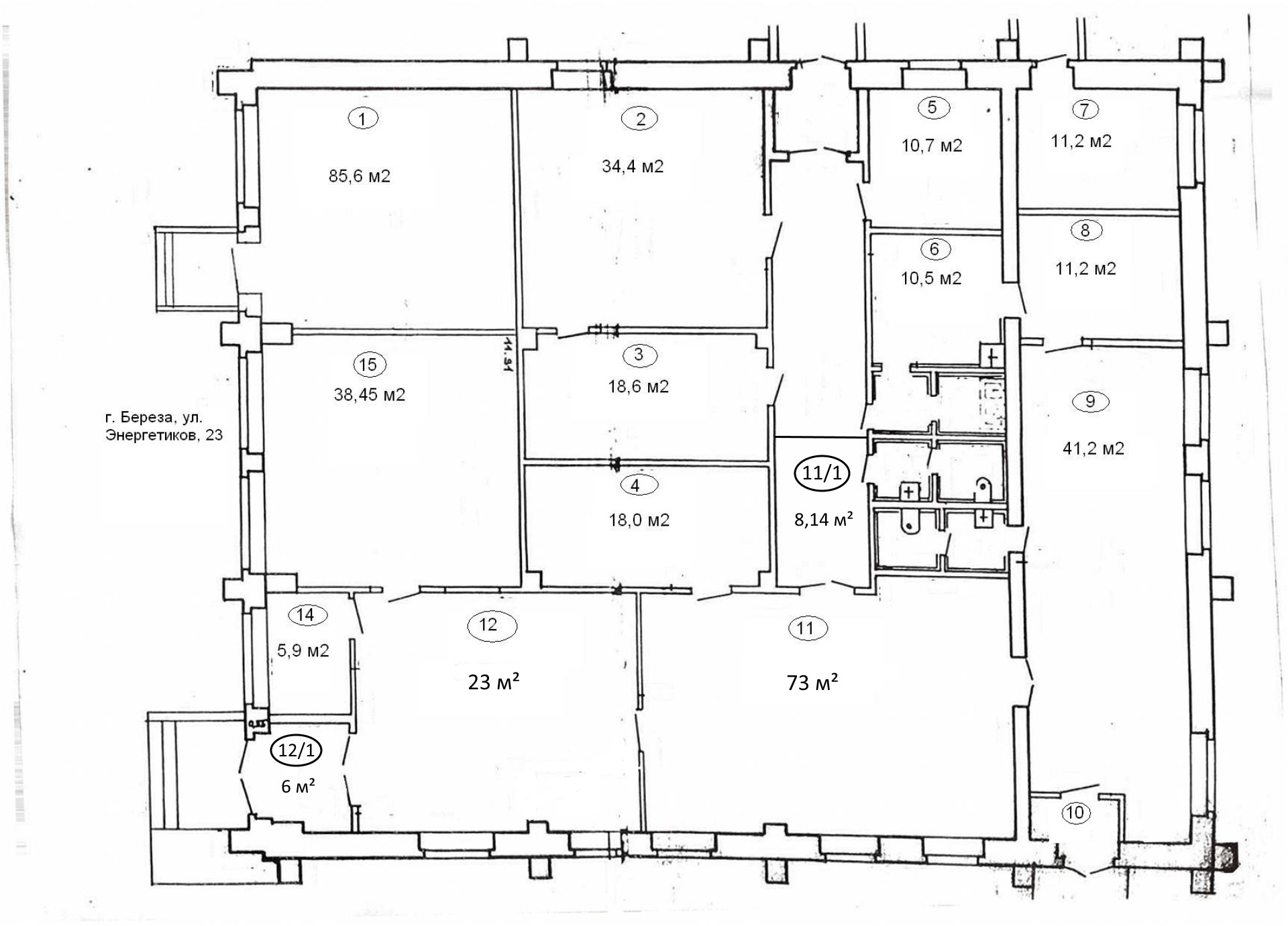
| Помещения | м2 | Номер помещения | Наличие свободных помещений |
| помещение | 85,6 | 1 | Нет |
| помещение | 34,4 | 2 | Нет |
| помещение | 18,6 | 3 | Нет |
| помещение | 18 | 4 | Нет |
| помещение | 10,7 | 5 | Нет |
| помещение | 10,5 | 6 | Нет |
| помещение | 11,2 | 7 | Нет |
| помещение | 11,2 | 8 | Да |
| помещение | 41,2 | 9 | Да |
| помещение | 2,2 | 10 | Да |
| помещение | 73 | 11 | Нет |
| помещение | 8,14 | 11/1 | Нет |
| помещение | 23 | 12 | Нет |
| помещение | 6 | 12/1 | Нет |
| помещение | 4 | 13 | Нет |
| помещение | 5,9 | 14 | Нет |
| помещение | 38,45 | 15 | Нет |
По вопросам аренды, можно связаться по телефону +375 (29) 278-59-20
Похожие услуги
Аренда помещений г. Малорита, УЛ. Ленина, 12
ОАО «Брестоблгарант» сдает коммерческую недвижимость в аренду в г. Малорита. Отдельностоящее двухэтажное капитальное строение с прилегающей территорией.
Аренда помещений г. Жабинка, ул. Центральная, 4
ОАО «Брестоблгарант» сдает коммерческую недвижимость в аренду в г. Жабинка. Отдельностоящее одноэтажное капитальное строение с прилегающей территорией. Имеются все коммуникации.